Представьте: центр города, теплый вечер, на большом экране идёт матч, люди болеют, кричат, обнимаются с незнакомыми соседями — и всё это в вашей фан-зоне. Ни стадиона, ни миллионного бюджета, а атмосфера как на чемпионате мира. Реально? Да. Если подойти к делу с головой.
—
Что нужно подготовить до начала: место, люди, документы
Выбор площадки и согласования
Сначала решите, где вообще будет ваша фан-зона. Это может быть:
— городская площадь, парк, набережная;
— двор у ДК или спорткомплекса;
— закрытая территория ТЦ или стадиона.
Ключевые моменты:
1. Доступность: рядом остановки, парковка, понятные подходы.
2. Безопасность: нет узких проходов, ям, близко не ездят машины.
3. Электричество: либо стационарное подключение, либо возможность завести генераторы.
После выбора места начинаются «официальные» шаги: письма в администрацию, согласование проведения спортивных мероприятий в городе, уведомления в полицию, медицинские службы, пожарных. Не откладывайте это: иногда только на одно согласование схемы расстановки могут уйти недели.
Если у вас нет опыта бюрократии, логично привлечь ивент-агентство по организации фан-зон на спортивные матчи — они знают, какие документы, схемы и расчёты нужны конкретно в вашем городе.
—
Необходимые «инструменты»: от экрана до волонтёров
Техническое оборудование
Для фан-зоны главным будет не декор, а «картинка и звук». Минимальный набор:
— большой LED-экран или несколько плазм;
— медиасервер/ноутбук или ТВ-тюнер с легальным источником трансляции;
— звуковая система (колонки, усилители, микшер);
— микрофоны для ведущего и гостевых включений;
— кабели, удлинители, распределители питания;
— генераторы, если нет стабильной сети.
Нередко выгоднее не покупать, а взять всё сразу: аренда оборудования для фан-зоны на матч у профильной компании избавляет от головной боли с транспортом, монтажом и технической поддержкой на месте.
Организационные ресурсы
Техника — это только половина дела. Нужны люди:
— координатор проекта;
— технический специалист (звук, свет, экран);
— ведущий или несколько аниматоров;
— волонтёры на входе и в фан-секторе;
— ответственный за безопасность и взаимодействие с охраной;
— медработник (или договор с ближайшим пунктом медпомощи).
Кто-то всё это собирает в одну схему, следит за таймингом и не даёт провалиться в хаос. Этого человека лучше освободить от мелочей — он должен принимать решения, а не таскать кабели.
—
Поэтапный процесс: как всё собрать по шагам
Шаг 1. Определитесь с форматом фан-зоны
Ответьте на несколько практических вопросов:
1. Сколько людей вы хотите/можете принять?
2. Будет ли вход бесплатным или по билетам/регистрации?
3. Нужна ли отдельная VIP-зона (партнёры, спонсоры, чиновники)?
4. Будут ли активности до и после матча: конкурсы, диджей, автограф-сессии?
От этих решений зависят площадь, схема рассадки (стоя/сидя), количество точек питания, объём техники и даже сценарий работы ведущего.
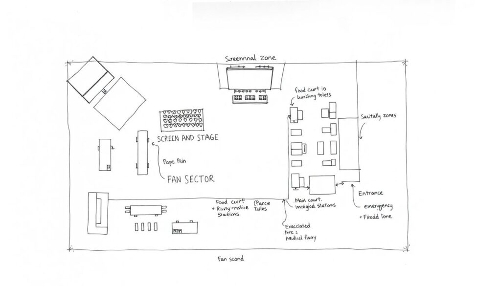
Шаг 2. Спланируйте зонирование территории

Набросайте план (хотя бы от руки):
— экран и сцена (если она нужна);
— фан-сектор (основная толпа с лучшим обзором);
— техническая зона (звук, свет, управление экраном);
— фудкорт и напитки;
— санитарные зоны (биотуалеты, рукомойники);
— вход/выход, проходы, эвакуационные пути;
— место для медиков и охраны.
Совет: не зажимайте народ плотно к экрану. Людям нужно место, чтобы прыгать, махать флагами, ходить за едой и обратно.
Шаг 3. Договоритесь с подрядчиками
Обычно в организацию фан-зоны под ключ входит сразу несколько блоков: техника, сцена, охрана, уборка, питание. Если не хотите всё тащить на себе, ищите подрядчиков:
1. Техническая компания (звуко-, свет, экран).
2. Кейтеринг или локальные кафе/фудтраки.
3. Охранное предприятие и служба пропускного режима.
4. Уборка и вывоз мусора.
5. Медицинское сопровождение.
Заранее пропишите в договорах: время монтажа и демонтажа, ответственность за порчу имущества, штрафы за опоздание, резервный план, если что-то выйдет из строя.
Шаг 4. Продумайте контент и сценарий
Фан-зона — это не просто «большой телевизор на улице». Между свистками судьи у людей есть время заскучать.
Продумайте:
— разогрев перед матчем: конкурсы, викторины, интерактивы с ведущим;
— поддержку локальной команды: флаги, шарфы, кричалки, возможно, короткое выступление фан-клуба;
— активность в перерыве: розыгрыш призов, включения с места события, фотозона;
— финал: благодарность зрителям, партнёрам, объявление о следующих мероприятиях.
Так вы из простой трансляции делаете настоящее городское событие, которое люди захотят повторить.
Шаг 5. Настройка безопасности и комфорта
Вот здесь лучше перестраховаться.
1. Охрана на входе: контроль сумок, запрет стекла, острых и опасных предметов.
2. Барьеры и ограждения: чтобы толпа не «наехала» на экран, техзону, фудкорт.
3. Запасной выход: реальные, открытые и промаркированные эвакуационные пути.
4. Информирование: таблички «туалет», «медпомощь», «выход», «не курить».
5. План по дождю: зонты, навесы или хотя бы заранее донесённая до гостей информация о том, что трансляция состоится в любую погоду.
Не забудьте о базовом комфорте: вода, урны, уборка территории во время и сразу после матча.
—
Практический чек-лист: чтобы ничего не забыть
Попробуйте пройти по пунктам и честно себе ответить, всё ли закрыто:
1. Есть ли письменное разрешение на мероприятие и согласованная схема площадки?
2. Прописан ли источник трансляции и легальность прав показа?
3. Подтверждены ли подрядчики по технике, охране, медицине и уборке?
4. Понятен ли маршрут зрителя: как он заходит, где смотрит матч, где ест, где выходит?
5. Назначен ли один главный координатор, который знает ответы на все вопросы?
Если по любому пункту ответ «не уверен» — вернитесь и доработайте. На самой фан-зоне исправлять такие вещи будет поздно и дорого.
—
Как встроить фан-зону в городской праздник
Связка с другим событием
Часто фан-зона — часть большего формата: День города, фестиваль, спортивный забег. В этом случае стоит использовать общий поток людей.
Организаторы или муниципалитет могут предложить услуги по организации городских праздников с фан-зоной, объединяя концерт, ярмарку и просмотр матча. Ваша задача — добиться, чтобы фан-зона не «терялась», а была логичным центром притяжения: понятные указатели, анонсы со сцены, отдельные спецакции от партнёров.
Работа со спонсорами
Фан-зона — идеальная площадка для брендов: напитки, спортивная экипировка, телеком, такси. Предложите:
— брендированные зоны (фотозона, зона отдыха, зарядка телефонов);
— призы для конкурсов;
— интеграцию в программу (викторины от партнёров).
Но следите, чтобы брендирование не «забило» сам футбол или другой матч: люди пришли болеть, а не слушать рекламу.
—
Типичные проблемы и как их решать
1. Пропал звук или картинка во время матча
Самый страшный сон организатора. Чтобы не паниковать:
— заранее заложите резервный источник сигнала (второй ресивер, запасной ноутбук);
— имейте под рукой техспециалиста с опытом работы именно с трансляциями;
— подготовьте «план Б» по развлечению публики на 10–15 минут: конкурсы, танец, массовая «зарядка болельщиков».
И главное: предупредите ведущего, что он в такой момент — ваш «щит». Его задача — не дать толпе взорваться, пока техника чинится.
2. Переполненная площадка и давка
Если вы недооценили интерес к матчу, людей может прийти больше, чем рассчитывали.
Что помогает:
— контроль входа и информирование: как только площадка заполняется, охрана аккуратно останавливает пуск;
— онлайн-объявления: через соцсети и мессенджеры сообщайте, что места почти нет;
— работа с полицией и муниципальной службой: они могут перекрыть лишние потоки к площадке.
На старте планируйте чуть больший запас по площади, чем ожидаемое количество людей: лучше пустые метры, чем давка.
3. Конфликты и агрессивное поведение

Матч, алкоголь, эмоции — классическая почва для конфликтов.
Решение:
— жёсткий, но корректный контроль алкоголя при входе;
— видимая, но не провокационная охрана;
— чёткие правила: где можно курить, где нельзя, какие предметы запрещены;
— подготовка ведущего и волонтёров: они должны уметь гасить напряжение словами и юмором.
Не стесняйтесь вызывать полицию, если ситуация вышла из-под контроля. Безопасность людей важнее продолжения мероприятия.
4. Плохая погода
Дождь, ветер, жара — всё это реальность уличных событий.
Подстрахуйтесь:
— навесы для части зрителей и техники;
— защита кабелей и соединений от влаги;
— запасные пледы/дождевики (можно продавать или раздавать спонсорские);
— реальный, заранее объявленный план: перенести ли трансляцию, если погода станет опасной.
Лёгкий дождь болельщиков не разгоняет, а вот гроза — серьёзный повод остановить мероприятие.
—
Когда имеет смысл брать «под ключ», а не делать самому
Если у вас небольшая локальная история на 100–200 человек, можно собрать фан-зону своими силами с минимальным бюджетом и простым набором техники. Но как только речь идёт о нескольких сотнях или тысячах зрителей, лучше рассмотреть организацию фан-зоны под ключ.
Профессионалы:
— просчитают нагрузку на электричество;
— подберут экраны с нужной яркостью под солнце;
— продумают логистику, график монтажа и демонтажа;
— возьмут на себя часть рисков и ответственность за технику.
Вы же сможете сосредоточиться на смысле события: приглашении гостей, работе со спонсорами, медиа и администрации.
—
Итог: что делает фан-зону по-настоящему удачной

Успешная фан-зона — это не самый огромный экран и не самый громкий звук. Это:
— понятное и безопасное пространство;
— стабильная трансляция без сбоев;
— живая программа вокруг матча;
— адекватные цены на еду и напитки;
— команда людей, которая умеет работать с эмоциями толпы.
Собрав всё это вместе и грамотно вписав фан-зону в городской контекст, вы делаете не разовый показ матча, а новый формат городского досуга, к которому люди захотят возвращаться снова и снова.

